Image Gallery & Plans

New Floorplan

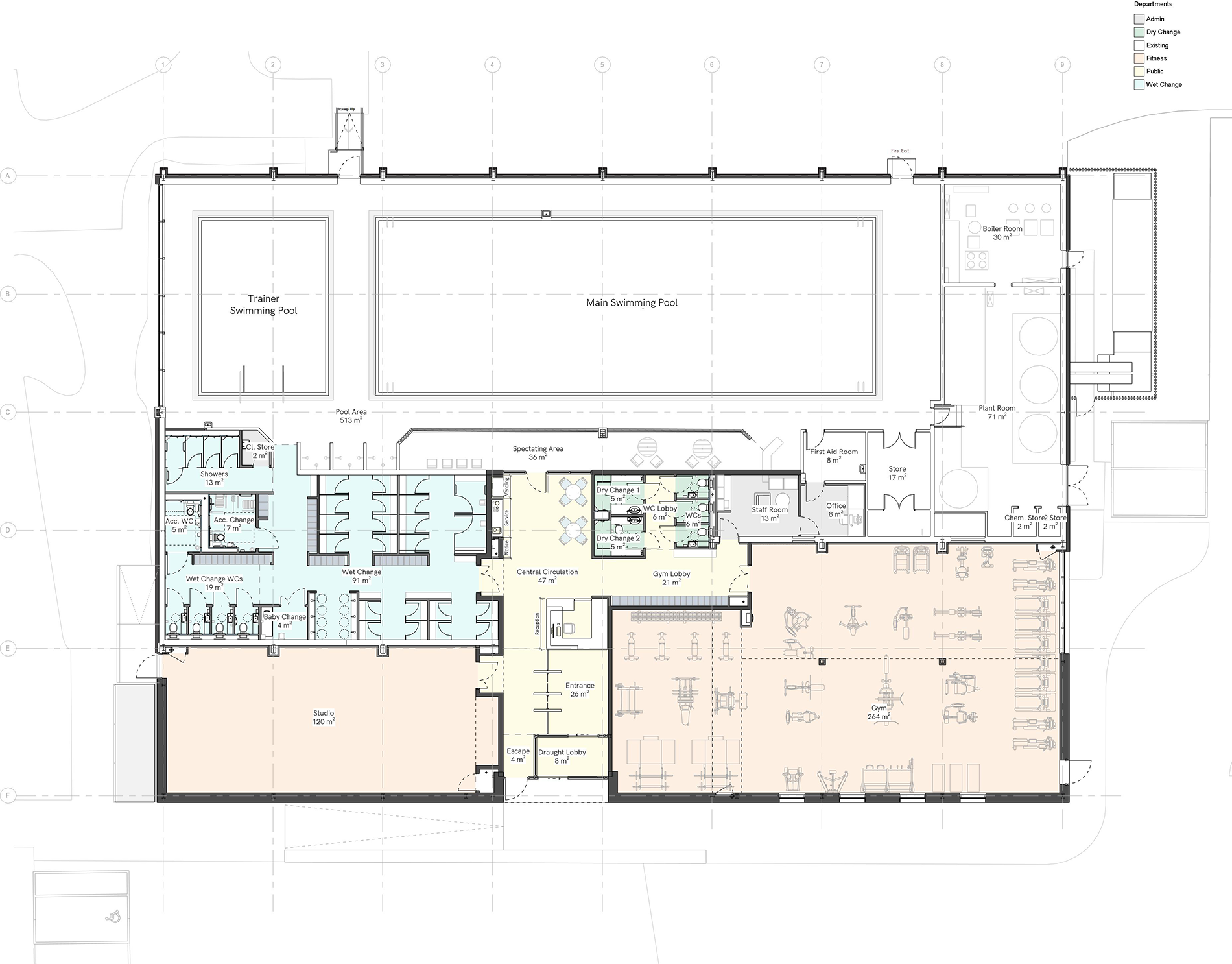
We’re excited to share the plans for the new and improved Troon Leisure Club, with its increased gym, new studio and refreshed changing facilities.

Architectural Floorplan showing the Troon layout with an increased gym (264 m2) and new multi-purpose studio (120 m2) along with refurbished wet and dry changes
Privacy Settings
We use cookies to enhance your experience while using our website. If you are using our Services via a browser you can restrict, block or remove cookies through your web browser settings. We also use content and scripts from third parties that may use tracking technologies. You can selectively provide your consent below to allow such third party embeds. For complete information about the cookies we use, data we collect and how we process them, please check our Privacy Policy
Youtube
Consent to display content from - Youtube
Vimeo
Consent to display content from - Vimeo
Google Maps
Consent to display content from - Google